休閒況味的打造除了開放的空間、明亮的採光外,更包含了色系與建材的運用,休閒風格的建材大多以石材、木質搭配,希望透過樸實的材質強調空間紓壓的氛圍,在區域規劃上也會以吧檯、湯屋、開放式的廚房為空間配置的特色。
這棟位於林口的透天別墅,屋主當初的需求希望以沉穩的色系、木質的空間為設計的基調,並希望帶入觀林特有的「現代禪意」內斂的配色與材質的混搭營詮釋休閒禪風的設計語彙。
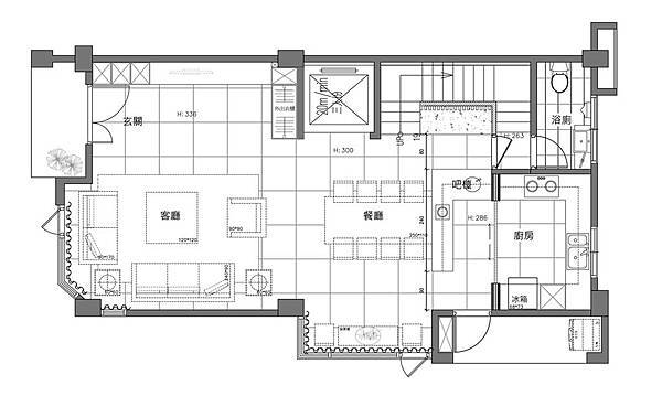
動線規劃說明:位於林口郊區的獨棟別墅,採光、視野都不錯,因此在規劃上設計師調整了動線大量引渡戶外的自然風景,加上開放式的動線延伸客廳、餐廳、廚房打造空間的穿透感。
Home Data
地點:林口新北市
風格:休閒、現代禪風
坪數:90.8坪
建案屋況:新成屋5年以下
房屋格局:7房5廳
居住成員:4人
建築形式:透天別墅
主要建材:上漆低鉀醛防焰木皮板、大理石石材、烤漆玻璃、黑鏡、灰玻、不銹鋼、馬賽克磚、板岩磚、超耐磨木地板
【1F空間區】
▲大面積的石材與木質混搭,家具搭配上以黑色皮製沙發傳達出空間沉穩質感。
▲電梯外旁的用材以大理石牆面包覆,呼應電視主牆的建材搭配,樓梯的過渡處以木格柵區隔,餐桌的用色選材也以呼應空間的質感為主。
▲吧檯的規劃為休閒空間營造重點之一│讓屋主休閒之餘可選擇喝杯紅酒暢談心事。吧檯以黑色大理石材營造質感並選用特色單椅。
▲休閒空間營造重點之二│開放式餐廳,設計師為將1F的空間用度充分延伸,選擇開放式空間將廚房、餐廳打通並引進自然光增加穿透感,用餐的環境能與戶外風景連結是最好的休閒時光,平時在餐桌上喝杯咖啡彷彿置身於咖啡館,享受一下午的愜意。
【2F空間區】
▲休閒空間營造重點之三│欣賞戶外風景的主臥室,由於林口的地段絕佳,設計師在規劃上刻意將三面空間規劃成落地窗,引進戶外的風景。
▲閱讀空間│臥室前方設計師規劃了一處小書房,方便屋主寫作,看著風景寫下心情日記,簡單生活從這裡開始,後方為女主的更衣室。

▲休閒空間營造重點之四│湯屋設計,假日泡湯一直是都市人嚮往的假期紓壓行程之一,設計師在規劃空間時也幫屋主設想疏壓的空間,方便屋主夫妻倆能在假日之餘直接在家中享受泡湯渡假生活。牆面空間以板岩設計搭配深色系的木質櫃,強調用色一致。
▲浴室同樣規劃泡湯空間,一旁淋浴間以馬賽克磚裝飾,傳達空間的輕盈色系。
休閒空間的規劃一直是觀林團隊擅長的風格,近幾年來的作品也以低調、內斂的用色獲得屋主們的喜歡,黑色大理石材與沉穩的木質感也是設計師的用材首選,空間的規劃並以吧檯、湯屋、開放式的空間延伸引進自然風景為規劃的強項,喜歡我們的讀者不妨跟隨我們休閒特質的腳步,多多分享我們的設計觀。
▲觀林設計粉絲團 :Facebook
▲觀設計App:iOS下載處│Android下載處

留言列表