通常談設計案的過程中,除了前期的平面圖規劃,現場工地丈量精準的抓到空間的用度與坪效外,我們在溝通簡報的過程也會提出自己的設計哲學,包含對於空間的設計理念,並會安排空間3D的企劃提案。
3D模擬圖的提案是為了將空間更完整的呈現也,也藉由圖面與屋主溝通空間建材、色系搭配、空間透視等,並讓屋主對於設計上的想像上更有畫面,進而溝通設計工程面上的可能會遭遇的種種問題。
以商業空間案為例,由於業主對於品牌的形象及空間調性的傳達都十分重視,為了要確認品牌理念與空間設計是否符合通常在成案後會進行3D圖的提案工作,針對公司理念、品牌、空間感的安排進行調整,會議上業主常給我們意想不到的回饋,有些業主在討論完公司形象後會確立適合的色系跟建材,這些都是畫面溝通的必須本次的商業空間案如何結合理念與設計感並重呢?
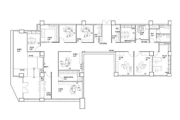
《牙醫診所平面配置圖》
商業空間Data
坪數:83坪
空間規劃:遊戲區、等待區、接待區、手術室、診療室、消毒室
在動線上重新分配空間的用度一分為二,左側區由於空間較大適合當作接待區、等待遊戲區,而右側的重點則是在診療室,這樣的區分也顧及到客人的隱私,在不壓迫到空間的情況下,盡量增加空間的坪效,走廊區的過度處在設計理念上以現代簡約的調性詮釋。
接待區的櫃台以黑色大理石檯面,搭配天花板上的線條傳達精品商業空間的設計,黑色大理石柱處設計師安排了影音播放隨時讓等候的民眾知道最新的進度。
孩童遊戲區的設計概念以明亮、童趣、跳色象徵空間活潑的生機,在天花板上凹凸不平為表達牙齒表面就像階梯上上下下的平整,趣味的呼應商業空間的主軸,圓滾滾的蛋型椅,鮮豔的色系點綴空間妝容,窗檯上的樹木的造型象徵空間自然感,地毯的設計以米老鼠的色塊搭配,走進空間就能感受到紓壓童趣的氣息。
走廊立面圖
光影變化設計的起源源自於牙齦內的神經,透過光影交替傳達設計的精隨,白色系的搭配讓空間明亮、穿透,以輕跳的方式呈現空間的活潑感,讓人走入這間空間如同走進一間現代美術館。
「白色柔光的閃爍,象徵源源不絕的生命力」
牆面上的方塊一明一滅白光交錯,象徵是源源不絕的生命力,一旁的光影的流逝如牙齦內的神經交錯,在空間的交互作用下形成最和諧的畫面。
國際案例觀察:DDP東大門設計廣場
近幾年來韓國首都越來越多現代大器的設計元素,其中像是DDP東大門設廣場就變成一個具有特色的設計地標。
大量LED散發著柔和燈光,與白晝的磅礡氣勢相比,多了些神秘又炫目的美麗氣質。
空間設計以純白色為色系主軸,分層的動線,波狀的立體雕塑空間象徵空間的流動感與源源不絕的生機。
雕塑感的牆面與天花板上的燈光結合,不規則的造型特別獨樹一格的個性。
在觀察這些案例中都是很好的設計養分,不斷的吸收與進步,也是對自己的期許。
從提案到成案都是繁複又漫長的溝通過程,包含企劃的理念,設計的用材都是每次會議的重點,除了美感上的要求細心的溝通也是設計師必備的功課。

